DENOMINACIÓN: Casa Ambar
AÑO: 2012
LOCALIZACIÓN: Punta del Diablo, Rocha, Uruguay (34°02’55.8″S 53°32’51.0″W)
MODALIDAD: Encargo privado
PROYECTO: Rafael La Paz + Pancho Firpo
DIRECCIÓN OBRA: Rafael La Paz + Pancho Firpo
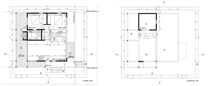
DIMENSIONES: 80 m2 interiores; 25 m2 exteriores; 60 m2 exteriores techado








ARCHIVO
GRÁFICOS


FOTOGRAFÍA OBRA

