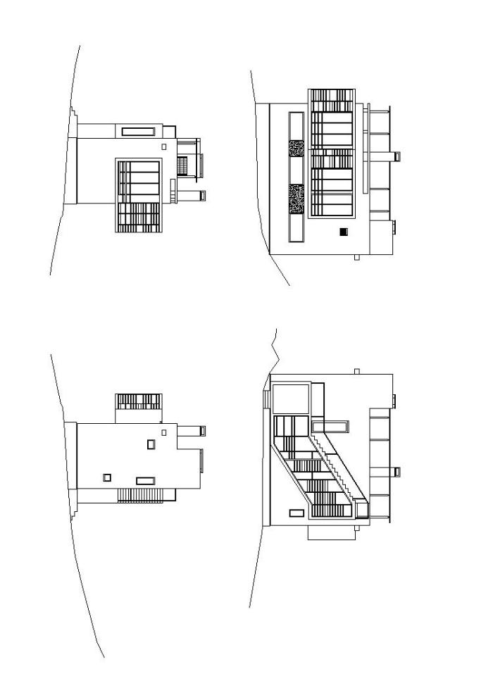
DENOMINACIÓN: Casa Scala
AÑO: 2009
LOCALIZACIÓN: Punta del Diablo, Rocha, Uruguay (34°03’03.8″S 53°32’52.5″W)
MODALIDAD: Encargo privado
PROYECTO: Rafael La Paz
DIRECCIÓN OBRA: Rafael La Paz
DISEÑO MUEBLES: Pancho Firpo + Rafael La Paz
DIMENSIONES: 110 m2 interior; 18 m2 balcones; 50 m2 terraza transitable











ARCHIVO
GRÁFICOS

EQUIPAMIENTO
Diseño de muebles: Pancho Firpo + Rafael La Paz




FOTOGRAFÍA OBRA







