DENOMINACIÓN: Cochera-Mirador
AÑO: 2005
LOCALIZACIÓN: Zona Rural Los Pinos, Colonia, Uruguay (34°26’08.6″S 57°13’55.8″W)
MODALIDAD: Encargo privado
PROYECTO: Rafael La Paz
DIRECCIÓN OBRA: Rafael La Paz
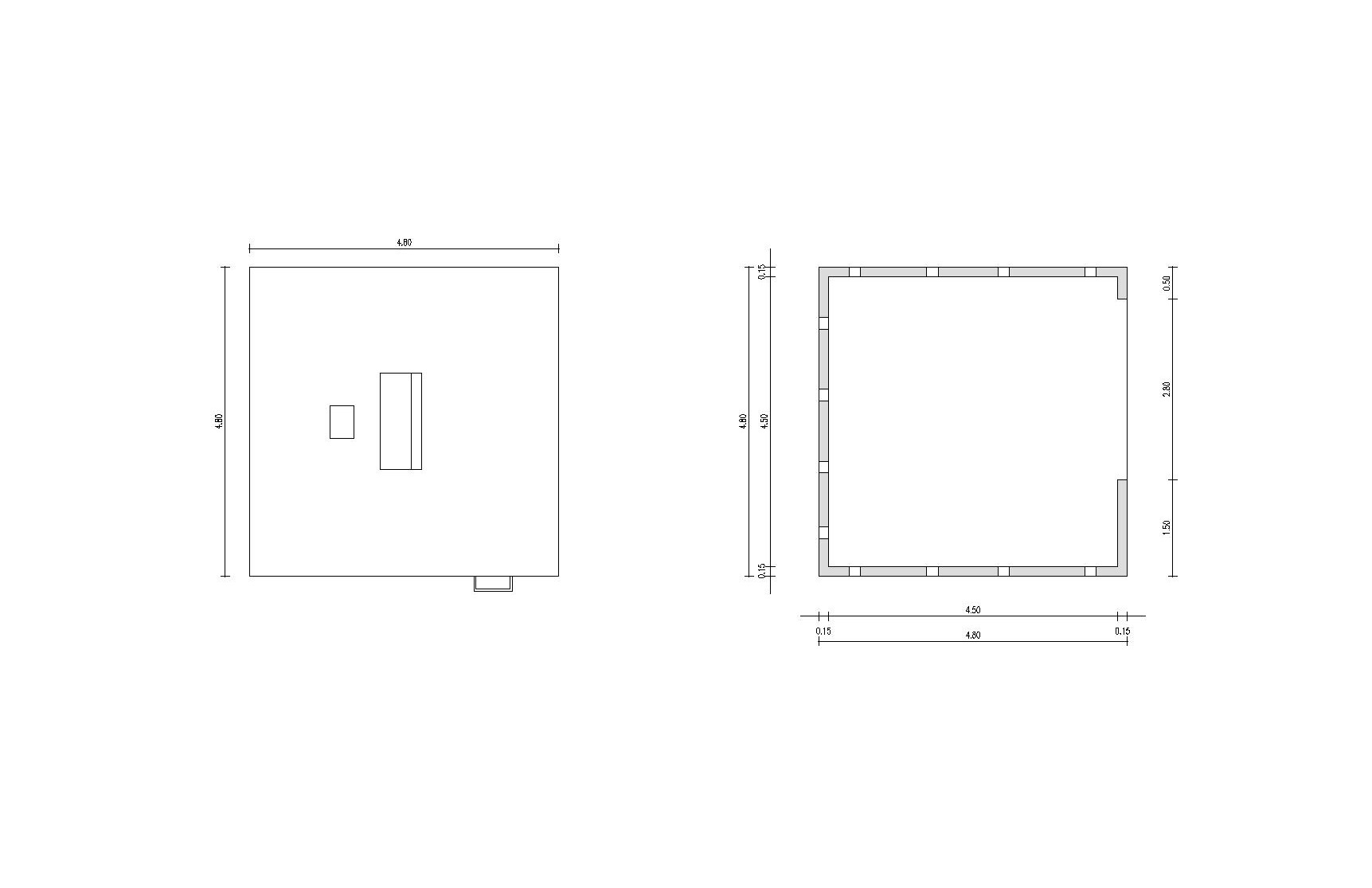
DIMENSIONES: 23 m2; 4,8 x 4,8 x 3,3 mts








ARCHIVO
GRÁFICOS

DIBUJOS

auto adentro de un cubo, un cubo en el paisaje

mesa para vino y cigarros

Simetrías, Asimetrías
FOTOGRAFÍA – OBRA

FOTOGRAFÍA -ARQUITECTURA HABITADA






